На продажу €365,000
Property Ref. TRK10856

Апартаменты Ref. TRK10856

Kato Paphos - Universal

€365,000 Плюс НДС
Kato Paphos Universal
Апартаменты c плана
2 Спальни 2 Ваннaя
78m² Крытая
Бассейн общий
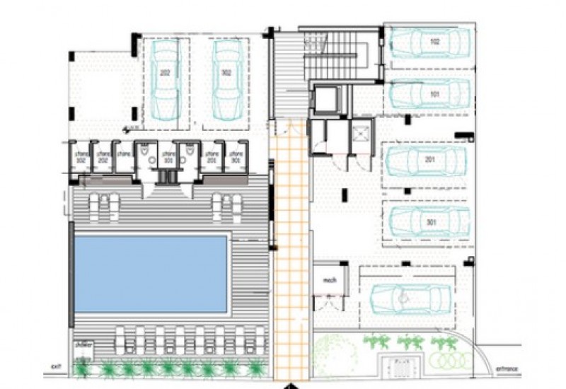
Парковка крытая
Центр. Отопление подпольное
Энергоэффективность Класс A
ОТПРАВИТЬ ЗАПРОС

особенности имуществa

Аэропорт: 15 мин езды
Бассейн - общий
Гольф: 15 мин езды
Гольф: Пешком
Доступ к дороге
Кладовая
Кондиционер
Лифт
Открытая кухня
Парковка - крытая
Плюс НДС
Пляж: 5 мин езды
Центр. Отопление - подпольное
Энергоэффективность - Класс A


Описание

Современные апартаменты с 2 спальнями в престижном жилом районе Universal, Пафос

Эти элегантные апартаменты с двумя спальнями расположены на первом этаже современного жилого дома в популярном районе Пафоса Universal. Изысканная отделка, функциональный дизайн и продуманное оснащение всех помещений делают их комфортной и стильной квартирой в одном из самых удобных районов города.

Ключевые особенности

  • Две просторные спальни со встроенными шкафами
  • Светлая открытая планировка, объединяющая гостиную, столовую и кухню
  • Крытая веранда идеально подходит для обедов и отдыха на свежем воздухе
  • Современная ванная комната с качественной сантехникой и лаконичным дизайном
  • Класс энергоэффективности A

Основные параметры интерьера

  • Современная архитектура с большими окнами с алюминиевыми рамами для естественного освещения
  • Теплый пол и система климат-контроля VRF для комфорта круглый год
  • Система нагрева воды на солнечной энергии
  • Высококачественные материалы и отделка во всем доме

Строительные удобства

  • Общий бассейн с душем и раздевалками
  • Благоустроенный сад для общего пользования
  • Крытая парковка и индивидуальная кладовая
  • Охраняемый доступ и лифт для дополнительного удобства

Отличное расположение

Апартаменты расположены в тихом, но в то же время центральном районе Юниверсал, в пешей доступности от супермаркетов, ресторанов, тренажерного зала и местных объектов инфраструктуры. Гавань, центр города и побережье также находятся всего в нескольких минутах езды, что делает эту недвижимость идеальным вариантом как для повседневной жизни, так и для долгосрочных инвестиций.