Апартаменты Ref. BKAP9743

Limassol Town

€2,500,000 Плюс НДС
Limassol Town Limassol
Апартаменты Квартиры
3 Спальни Спальни
180m² Крытая
Бассейн общий
Парковка некрытая
Энергоэффективность Класс A
ОТПРАВИТЬ ЗАПРОС

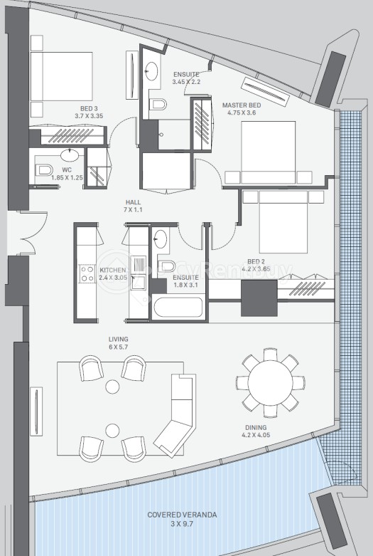
This stunning Property apartment offers an exceptional living experience in a prime location with access to a pool area and exclusive facilities such as a gym and sauna.

Upon entry, you're greeted by a spacious entrance area and lounge, setting the tone for luxurious living.
you'll discover spacious bedrooms and a fantastic kitchen boasting a wonderful design.

The fantastic kitchen, seamlessly connected to the living and dining areas, sets the stage for effortless entertaining. Step onto the covered veranda and indulge in breathtaking views.
Discover two remarkable bedrooms, each boasting its own ensuite bathroom, alongside an additional bedroom and a convenient WC for guests.

Бассейн - общий
Вид на море
Город: 5 мин езды
Открытая кухня
Парковка - некрытая
Плюс НДС
Пляж: 5 мин езды
Санузел при спальне
Энергоэффективность - Класс A
не нашли, что искали?
ЭТОТ ВЕБ-САЙТ ИСПОЛЬЗУЕТ COOKIES
Мы используем файлы куки, чтобы обеспечить вам лучший опыт работы на нашем веб-сайте. Если вы продолжите использовать сайт, мы предположим, что вы согласны получать их. Обязательно прочтите нашу политику COOKIES